$ 0 to $ 5,000

Other Features

$ 0 to $ 10,000,000

Other Features
Advanced Search

$ 0 to $ 1,000,000,000

Other Features

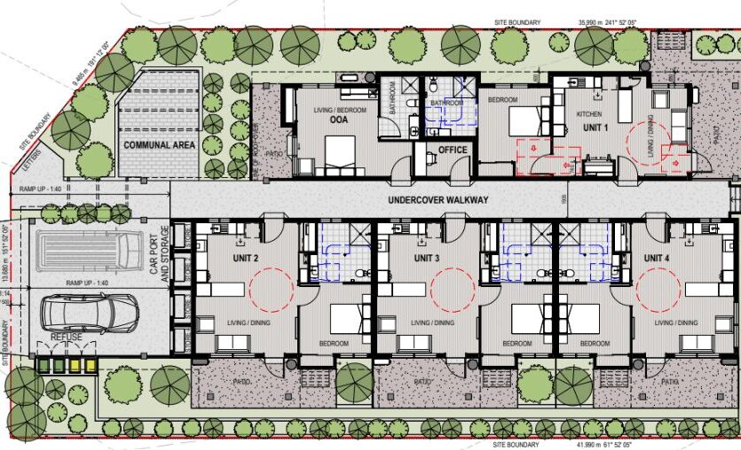
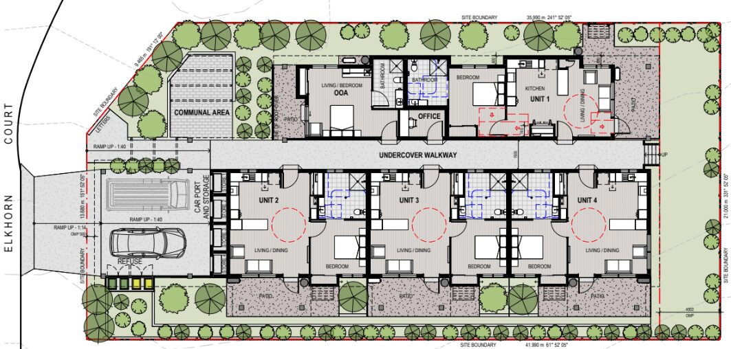
HPS SDA Villas + OOA 4 Private 1-Bed Homes in Norman Gardens

Norman Gardens, Rockhampton, QLD, 4701
add to favorites

NDISSDALifestyleHomes

Phone:+61 474 784 167
Email:[email protected]

Contact Me

Property Enquiry

Your search results

Property Description

4 x High Physical Support SDA villas in Norman Gardens. Private 1-bedroom villas + OOA, step-free access, high-contrast design, modern finishes, undercover walkways – minutes to Stockland, hospitals and CQUniversity.

Premium High Physical Support Living in a Quiet, Leafy Rockhampton Location

A new generation of High Physical Support (HPS) Specialist Disability Accommodation is coming soon to Norman Gardens.
This boutique development includes four private, purpose-built 1-bedroom villas, each designed to offer independence, comfort and safety, with the reassurance of a dedicated onsite OOA unit providing 24/7 support when needed.

Created by an award-winning design team, these villas have been carefully crafted for participants who value privacy, low-stimulus environments, and modern, accessible living.

Address: Norman Gardens QLD 4701
Design Category: High Physical Support (HPS)
Configuration: 4 x 1-Bedroom Villas + Onsite Overnight Assistance (OOA)

Key Features of the Villas

  • Four individual 1-bedroom HPS villas, each designed for maximum independence and safety
  • Separate onsite OOA unit with direct connectivity across the villa cluster
  • Private living room, kitchen, laundry and covered patio in every villa
  • Step-free pathways and open-plan layouts supporting smooth mobility
  • TV in both bedroom and living room, plus dishwasher and modern kitchen appliances
  • High contrast interiors and accessible fixtures for enhanced visibility
  • Carport with storage, undercover walkways, and secure communal zones
  • Generous internal layouts (approx. 68–69 m²) delivering functional, spacious living
  • Built to full NDIS SDA High Physical Support standards
  • Designed as a low-stimulation environment ideal for wellbeing and comfort

Location Benefits – Norman Gardens SDA Living

  • Experience the convenience of city amenities with the calm of a suburban setting:
  • 5 minutes to Rockhampton Base Hospital
  • 4 minutes to Stockland Rockhampton (shopping, dining, essentials)
  • 2 minutes to CQUniversity Rockhampton North Campus
  • Close to Norman Road Parklands, Pilbeam Park and other outdoor recreation spaces
  • Easy access to public transport and the Bruce Highway for regional travel
  • Situated in a quiet cul-de-sac with wide streets and a strong community feel

Why These Villas Stand Out

  • These HPS villas offer a rare combination of:
  • Private, fully self-contained living
  • A supportive, onsite OOA presence
  • High-quality finishes and thoughtful accessibility throughout
  • A peaceful, low-density environment designed for long-term comfort
  • Perfect for participants who want independence without compromising on safety, assistance or lifestyle.

Suitable For

NDIS participants approved for High Physical Support (HPS)

Also appropriate for Fully Accessible (FA), Improved Liveability (IL) or SIL support models

A Purpose-Built Community Designed for Quality of Life

Every element of this development has been shaped to enhance daily living—balancing privacy, connection, support and comfort.

Expected completion: Early 2026
Register your interest now to secure a place in this exclusive Norman Gardens SDA community.

CONTACT DETAILS

Name: Mark Nixon

 

Address: Norman Gardens, Rockhampton, QLD, 4701
State:
Country: Australia
Property Id: 23594
Property Size: 0 m2
Property Lot Size: 0 m2
Bedrooms: 4
Bathrooms: 4
Toilets: 4
Building Structure: Villa/Town house
Carparks: Yes
Available From: Now
doorway widths > 950mm
wheelchair accessible
fire sprinklers
Onsite Overnight Assistance
cooling
heating
wardrobe
ensuite
dishwasher
laundry
broadband
pets allowed
intercom
Emergency Power Backup
Strong and Robust Construction
High Energy Efficiency Rating
Outdoor Entertainment Area

Similar Listings

Compare