Property Description
Located in North Geelong, this purpose-built villa is designed to accommodate individuals with high physical support needs.
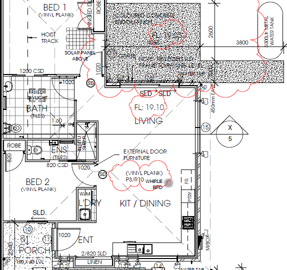
The modern and spacious property features a large bedroom for the participant, as well as an onsite overnight staff room with an ensuite. The open-plan lounge offers comfortable living with high-quality fixtures and finishes. Additionally, the property includes a generous courtyard with a pergola and two designated car spaces.
Alternatively you can contact Jared on 0473220728.
Address: 1B Giddings Street North Geelong VIC 3215
Country: Australia
Property Id: 22671
Property Size: 0 m2
Property Lot Size: 0 m2
Bedrooms: 2
Bathrooms: 2
Toilets: 2
Building Structure: Villa/Town house
Available From: Now
doorway widths > 950mm
wheelchair accessible
accessible features
Onsite Overnight Assistance
cooling
heating
wardrobe
ensuite
dishwasher
washing machine and dryer
laundry
fully-furnished
back yard


