Property Description
Discover contemporary High Physical Support (HPS) SDA living in the sought-after Calli Estate, Upper Coomera. This brand-new, low-occupancy 2-bedroom home has been purpose-built to support participants with high physical needs, offering generous internal spaces, private ensuites and onsite overnight assistance (OOA) to support safe, independent living.
Designed for both functionality and comfort, this home features multiple living zones and seamless indoor–outdoor flow, ideal for participants who value space, privacy and accessibility.
Quick Snapshot
- Address: Courtney Drive, Calli Estate, Upper Coomera QLD 4209
- Region: Gold Coast
- Design Category: High Physical Support (HPS)
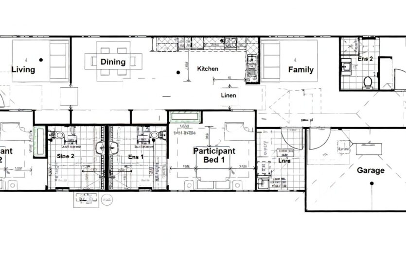
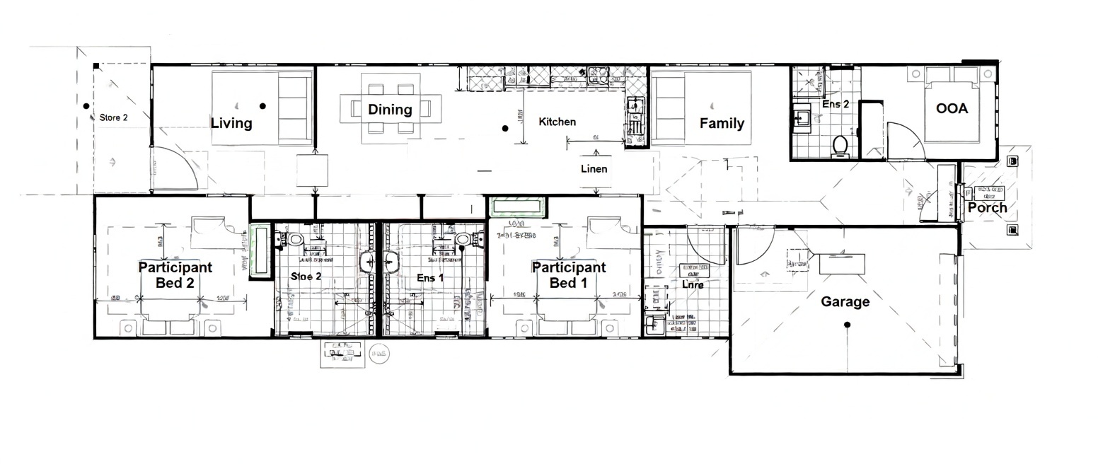
Configuration:
- 2 participant bedrooms (each with private accessible ensuite)
- 1 OOA room
- Double garage with internal access
Home Highlights
- Two spacious participant bedrooms with private accessible ensuites
- Dedicated OOA room enabling 24/7 onsite support
- Large, fully accessible kitchen and dining area with quality appliances
- Separate living room providing additional space and flexibility
- Covered alfresco area for indoor–outdoor living and relaxation
- Step-free, fully accessible layout throughout
- Double garage with internal access for added convenience
- Air-conditioning, ceiling fans and built-in wardrobes
- Intercom system, internet-ready connections and emergency backup power
- Purpose-built by experienced SDA specialists
Location Highlights
- Located within the modern Calli Estate, Upper Coomera
- Close to local shops, medical services and public transport
- Easy access to major road links and community amenities
- Well positioned between Brisbane and the Gold Coast
Ideal For
- NDIS participants approved for High Physical Support (HPS)
- Also suitable for Fully Accessible or Improved Livability
- Individuals seeking low-occupancy living with generous internal space
- Participants wanting modern SDA design with multiple living zones
- SIL providers seeking a high-quality, easy-to-support HPS home
Vacancies now available.
Enquire today to secure this brand-new High Physical Support SDA home in Upper Coomera.
Location
4km to the nearest train station at Coomera Train Station
4km to the nearest tram stop at Coomera Train Station
596m to the nearest bus stop at Reserve Rd near Lawson St
18km to the nearest ferry station at Southport
1km to the nearest shopping centre at Upper Coomera Shopping Centre
2km to the nearest hospital at Doctors @ Coomera Central
926m to the nearest park at Upper Coomera Adventure Parklands
1km to the nearest medical practice (GP) at WillowVale Clinic
Housing Provider: NDIS/SDA Lifestyle Homes Pty Ltd







