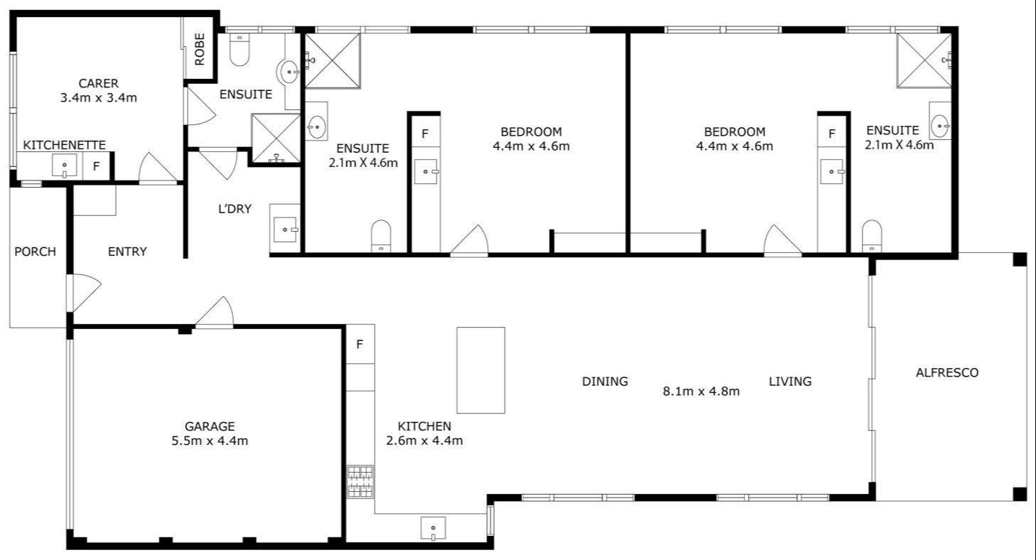
Property Description
High physical supported ensuite bathrooms, fully air conditioned throughout, security screens, and wheelchair accessible to all internal and external areas.
- 2 HPS bedrooms, with HPS ensuites and SDA accessibility options, split system air conditioning and capacity for ceiling hoists.
- OOA bedroom for onsite overnight support.
- Spacious open plan living
- Kitchen with height-adjustable bench top, dish drawer dishwasher, Caesarstone benchtops, + more
- Laundry, with washer and dryer provided.
- Secure lock up garage
Horizon SDA is here to help you obtain Specialist Disability Accommodation.
We are SDA Developers and a registered SDA Provider who specialise in High Physical Support homes.
All our SDA houses are designed to the highest specifications and physical support SDA certification criteria and are totally independently 3rd party approved.
Property Id: 22830
Property Size: 0 m2
Property Lot Size: 0 m2
Bedrooms: 3
Bathrooms: 3
Toilets: 3
Building Structure: House
Carparks: 2
Available From: 19/01/2026
doorway widths > 950mm
wheelchair accessible
accessible features
Onsite Overnight Assistance
cooling
wardrobe
ensuite
dishwasher
washing machine and dryer
laundry
pets allowed
back yard
fenced yard
Ceiling Hoist
Height adjustable bench
Outdoor Entertainment Area































